Zwei verbundene Lagerhallen mit Hochregalen und Laderampe
91452 Wilhermsdorf, Halle/Lager/Produktion zur Miete
Kontaktdaten
-
NameFabian Beier
-
FirmaBeier Immobilien
-
AdresseLaurentiusstr. 16
91522 Ansbach -
E-Mail Direkt
-
Tel. Durchwahl
-
Mobil
-
Fax0981/97788391
Objektdaten
-
Objekt ID143846627#lvVVH
-
ObjekttypHalle/Lager/Produktion
-
Adresse91452 Wilhermsdorf
-
Gesamtfläche ca.630 m²
-
Baujahr1994
-
BödenSteinboden
-
GewerbeLaderampe
-
Zustandgepflegt
-
Mieterprovision2,38 Kaltmieten, fällig bei Pachtvertragsunterzeichnung. inkl. MwSt.
Diese Immobilie ist provisionspflichtig. Weitere Informationen siehe Provisionshinweis. -
Kaution6615 €
-
Kaltmiete2.205,00 EUR
-
Nebenkosten280,00 EUR
Energieausweis
-
Energieausweisnicht erforderlich
Objektbeschreibung
Ausstattung
Detailüberblick:
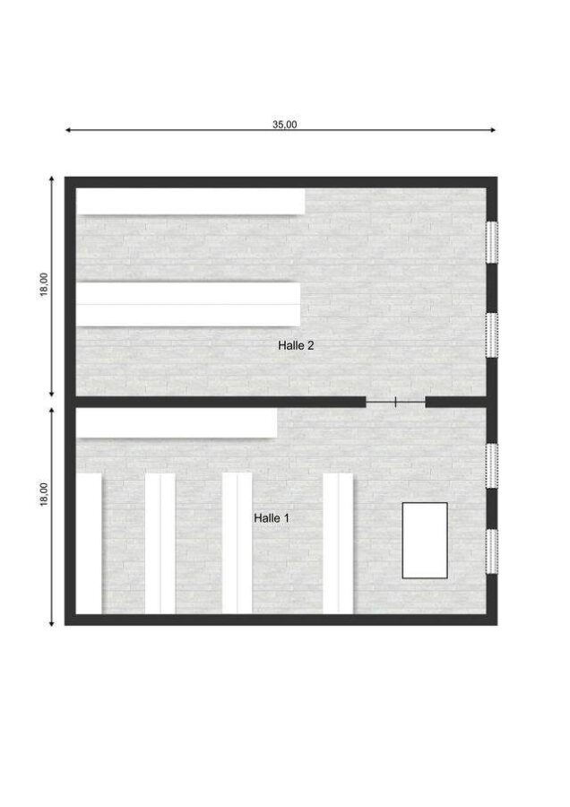
- Baujahr 1994
- Zwei verbundene Lagerhallen
- Maße jeweils 18 m x 35 m
- Halle 1 mit einem Tor
- Halle 2 mit zwei Toren
- Halle 1 mit Laderampe
- Halle 2 mit Laderampe
- Betonböden
- Isolierte Außenwände
- Halle 1 ca. 550 Regalstellplätze ca. 500 m²
- Halle 2 ca. 372 Regalstellplätze ca. 630 m²
- Ca. 2.000 Paletten können auf Wunsch übernommen werden
- Hallen können auch einzeln angemietet werden
- Halle 1 wird ein Teil vom Eigentümer genutzt und abgetrennt
- Halle 1 einzeln: 1.750 € Nettokaltmiete
- Halle 2 einzeln: 2.205 € Nettokaltmiete
- Ggf. kann zu einem späteren Zeitpunkt eine weitere Halle, sowie ein Bürogebäude dazu gemietet werden
Sonstige Informationen
Provisionshinweis
2,38 Kaltmieten, fällig bei Pachtvertragsunterzeichnung. inkl. MwSt.
Diese Immobilie ist provisionspflichtig. Sie wird vom Pächter getragen und ist verdient und zahlbar an den Nachweis-/Vermittlungsmakler bei Pachtvertragsabschluss. Eine Provision wird nur fällig, wenn es zu einem Nachweis oder einer Vermittlung einer Gelegenheit zum Abschluss eines Hauptvertrages kommt. Die Provision beträgt 2,38 Kaltmieten.
Lage
Die Lagerhalle befindet sich in einem Industriegebiet in Wilhermsdorf, einem Vorort von Nürnberg. Die Lage zeichnet sich durch seine zahlreichen Unternehmen und Gewerbegebiete aus, die eine wichtige Rolle in der regionalen Wirtschaft spielen. In unmittelbarer Nähe zur Immobilie befinden sich verschiedene Produktionsstätten und Lagerhäuser, die die Nachfrage nach Lagerflächen in diesem Gebiet steigern.
Wilhermsdorf liegt in der Metropolregion Nürnberg, die als einer der wirtschaftlich stärksten und innovativsten Regionen Deutschlands gilt. Die Stadt Nürnberg selbst ist bekannt für ihre vielfältige Wirtschaftsstruktur, die von traditionellen Industrien bis hin zu High-Tech-Unternehmen reicht. Die ausgezeichnete Infrastruktur mit Autobahnanschlüssen und dem nahegelegenen Flughafen macht die Stadt zu einem wichtigen Logistikstandort in Deutschland.
Die Region rund um Nürnberg ist aufgrund ihrer zentralen Lage in Europa und der guten Anbindung an wichtige Verkehrswege ein attraktiver Standort für Unternehmen. Die Industrielage der Lagerhalle bietet somit optimale Bedingungen für Logistikunternehmen und Produktionsbetriebe, die von der Nähe zur Stadt und der guten Anbindung an überregionale Märkte profitieren möchten.
Objekt
Zur Vermietung stehen ein gepflegtes und funktional durchdachte Gewerbeeinheiten, bestehend aus zwei miteinander verbundenen Lagerhallen. Das Objekt vereint großzügige Nutzflächen mit moderner Funktionalität und bietet optimale Voraussetzungen für eine Vielzahl gewerblicher Anwendungen - ob Lagerung, Logistik, Versand, Handwerk oder leichte Produktion.
Die beiden Hallen wurden im Jahr 1994 in massiver Bauweise errichtet und befinden sich in einem sehr gepflegten Zustand. Durch eine Verbindungstür lassen sich die Flächen sowohl gemeinsam als auch separat nutzen, was dem künftigen Mieter maximale Flexibilität bei der Organisation seiner Abläufe ermöglicht. Jede Halle verfügt über eine eigene Laderampe sowie einen ebenerdigen Zugang, sodass sowohl Anlieferung als auch Abholung komfortabel und effizient erfolgen können.
Die Außenanlagen sind großzügig gestaltet und bieten ausreichend Rangier- und Stellflächen für Fahrzeuge sowie gepflegte Grünbereiche, die dem Objekt ein gepflegtes Gesamtbild verleihen. Die Gartenpflege fällt lediglich etwa viermal jährlich an und ist mit überschaubarem Aufwand verbunden. Die Pflege übernimmt eine Hausmeisterdienst und wird anteilig auf die Mieter umgelegt.
Die beiden Hallen verfügen jeweils über eine Grundfläche von ca. 18 × 35 Metern, was einer Nutzfläche von rund 630 m² je Halle entspricht. Insgesamt ergibt sich somit eine Hallenfläche von ca.1.130 m². Eine Teilfläche der 1. Halle wird abgetrennt und weiterhin vom Vermieter genutzt.
Die Konstruktion besteht aus einer robusten Stahlrahmenbauweise mit gedämmten Wand- und Dachelementen. Durch die funktionale Ausführung eignen sich die Flächen hervorragend für Lagerzwecke, Produktionsprozesse oder logistische Abläufe.
Ein besonderes Plus sind die umfangreichen Regaleinbauten, die auf Wunsch übernommen werden können.
Halle 1 verfügt über ca. 550 Palettenstellplätze
Halle 2 verfügt über ca. 372 Palettenstellplätze.
Damit bietet das Objekt bereits eine durchdachte Lagerstruktur, die ohne großen Aufwand in den laufenden Betrieb übernommen werden kann.
Die Hallen sind hell, trocken und bieten durch ihre Deckenhöhe eine ausgezeichnete Raumausnutzung. Die Bodenflächen sind betoniert und für den Staplerbetrieb geeignet. Die Zugänge sind großzügig dimensioniert, sodass auch Lkw-Anlieferungen problemlos möglich sind. Durch die vorhandene Verbindungstür können beide Hallen nahtlos miteinander genutzt werden - ein klarer Vorteil für Betriebe mit Materialfluss zwischen verschiedenen Bereichen.
Sonstiges:
Die Hallen können gemeinsam oder einzeln angemietet werden - je nach Bedarf und geplanter Nutzung.
Die bestehenden Regalanlagen können auf Wunsch übernommen werden, wodurch ein schneller und reibungsloser Betriebsstart möglich ist.
Der Bezug kann nach Absprache kurzfristig erfolgen.
Sonstiges
Dieses Exposé wurde mit Sorgfalt zusammengestellt.
Alle darin enthaltenen Angaben über das Objekt beruhen auf Informationen
des Vermieters.
Eine Haftung für deren Richtigkeit und Vollständigkeit können wir nicht
übernehmen
Stichworte
Lagerfläche: 630,00 m², Gesamtfläche: 630,00 m², Lage im Industriegebiet
Lage
Sie sehen gerade einen Platzhalterinhalt von Google Maps. Um auf den eigentlichen Inhalt zuzugreifen, klicken Sie auf die Schaltfläche unten. Bitte beachten Sie, dass dabei Daten an Drittanbieter weitergegeben werden.
Mehr InformationenDie dargestellte Position der Immobilie ist nur eine ungefähre Angabe.























